
Zirkulär
ZUM ZIEL
HEILBRONN
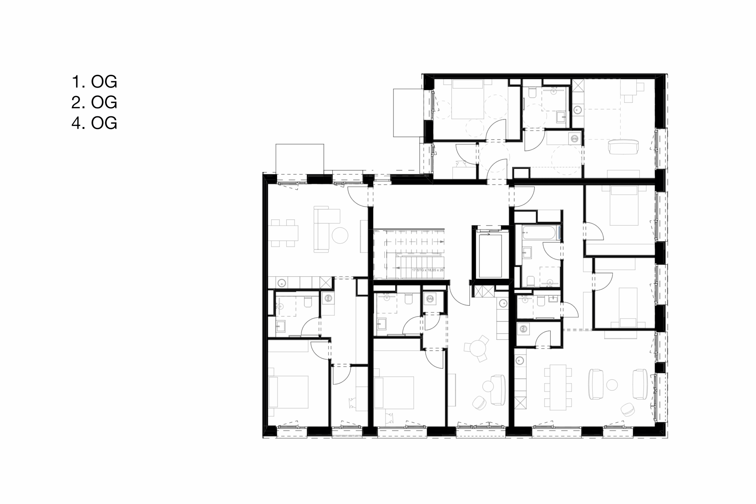
Wohnhaus Neckarfuxx
Ein Stadtbaustein mit Verantwortung: Für das neue, innenstadtnahe Quartier Neckarbogen in Heilbronn wird unser Siegerentwurf für ein Wohn- und Geschäftsgebäude realisiert. Der Holz-Hybridbau mit großzügigen Glasfronten und der Holz-/Metallfassade verbindet verschiedene Wohntypologien mit gemeinschaftlichen Flächen auf der Dachterrasse und im Innenhof. Unterschiedliche Lebensmodelle, Altersgruppen und Alltagsrhythmen treffen auf durchdachte Grundrisse, zirkuläre Materialkonzepte – getragen von einer Architektur, die ökologisch wie sozial nachhaltig denkt: Mit sichtbaren Holzoberflächen bis in den Innenraum, Photovoltaik, Gründach, Re-Use-Beton und einer zeitgemäßen Energieversorgung wird ein kreislauforientiertes, städtisches Miteinander von morgen erlebbar und lebendig.
PROJECT FACTS






